1 Windsor Terrace

Newton Stewart. DG8 6HT

UNDER OFFER - £120,000

Photograph of 1 Windsor Terrace, Newton Stewart

Photograph Gallery

Please click on a thumbnail, below, to view a photograph in more detail.

Photograph of 1 Windsor Terrace, Newton Stewart Photograph of Bathroom view 2 Photograph of Rear garden Photograph of Hallway Photograph of Lounge 2 Photograph of Lounge 3 Photograph of Lounge Photograph of Dining Room Photograph of Dining Room 2 Photograph of Kitchen Photograph of Kitchen 2 Photograph of Bedroom 1 Photograph of Bedroom 1 view 2 Photograph of Bedroom 2 view 2 Photograph of Bedroom 2 Photograph of Bedroom 3 Photograph of Bathroom Photograph of Rear garden 3 Photograph of Rear garden 2 Photograph of Front 2

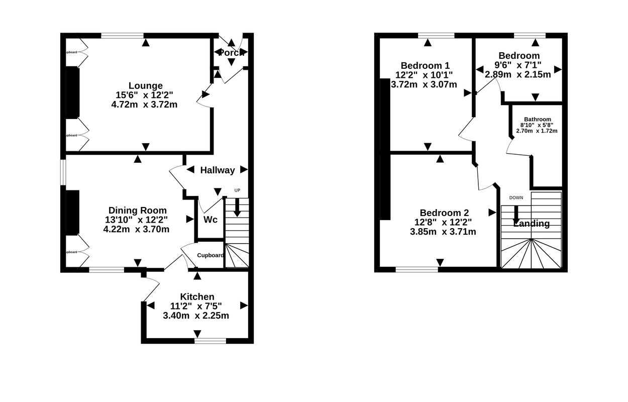
Floor Plan

Please click on the floor plan, below, to enlarge.

Floor Plan for 1 Windsor Terrace, Newton Stewart

Property Overview


3
Bedrooms
0
En-suite
2
Public Rooms
1
Bathrooms
Yes
Garden

Sat on an elevated plot in a well-sought-after location, this semi-detached property offers a generous sized family home offering spacious accommodation over two levels. Boasting three bedrooms and a ground floor WC, this residence presents itself as both an ideal first-time purchase and a promising buy-to-let investment. Equipped with gas-fired central heating, the property ensures warmth during colder months. The spacious garden grounds surrounding the property enhance its appeal, providing ample outdoor space for relaxation and entertainment.

The generous-sized garden at the rear of the property, fully enclosed, comprises a paved pathway that meanders through a large, maintained lawn area leading to a rear concrete patio. Embraced by timber boundary fencing, the garden exudes privacy and security. A gravel area curving around to the front entrance completes the outdoor ensemble, adding a touch of charm to this already enchanting property. With its seamless blend of indoor comfort and outdoor serenity, viewings for this property is to be thoroughly recommended.



General

It is understood that, on achieving a satisfactory price, the vendors will include fitted floor coverings and blinds throughout.

Services

Mains electricity, water & drainage. Gas fired central heating.

Council Tax

C

Energy Rating

EPC = D

Viewing

By appointment with GAP.

Entry

Negotiable.

More properties in Newton Stewart (22)