2 Dashwood Cottages, Goods Lane

Newton Stewart. DG8 6EH

UNDER OFFER - £40,000

Photograph of 2 Dashwood Cottages, Goods Lane, Newton Stewart

Photograph Gallery

Please click on a thumbnail, below, to view a photograph in more detail.

Photograph of 2 Dashwood Cottages, Goods Lane, Newton Stewart Photograph of Parking Photograph of Parking 2 Photograph of Entrance Hallway Photograph of Lounge Photograph of Dining Kitchen 2 Photograph of Dining Kitchen 3 Photograph of Dining Kitchen Photograph of Stairwell Photograph of Bedroom Photograph of Shower Room

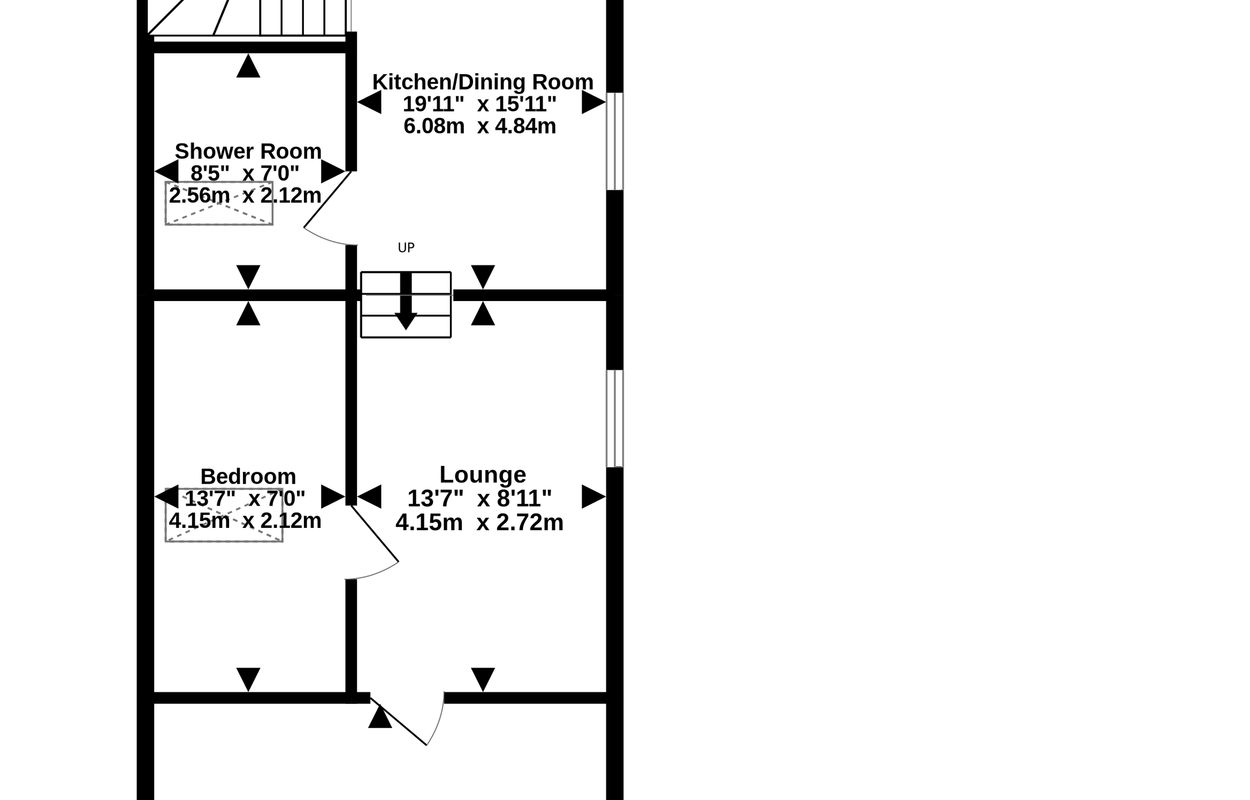
Floor Plan

Please click on the floor plan, below, to enlarge.

Floor Plan for 2 Dashwood Cottages, Goods Lane, Newton Stewart

Property Overview


2
Bedrooms
0
En-suite
1
Public Rooms
1
Bathrooms
No
Garden

Located in the heart of the town centre, this spacious upper floor flat offers a superb opportunity for both first-time buyers and investors alike. The well-presented accommodation comprises two generously sized bedrooms, making it ideal for a range of lifestyles. The open plan dining kitchen provides a sociable space for entertaining and every-day living, with ample room for a dining table and modern appliances. With its self-catering layout and practical design, the property is perfectly suited for those seeking convenience and comfort. The flat’s central location places all local amenities, shops, and transport links just a short walk away, ensuring everything you need is always within easy reach. This property also presents excellent potential as a buy to let investment, with strong demand for rental accommodation in this sought-after area.

Outside, residents benefit from the convenience of parking bays located directly opposite the property, providing hassle-free parking in the bustling town centre. The proximity of these bays ensures you are never far from your front door, adding to the ease of daily living. With its prime location and thoughtful features, this delightful flat offers an appealing combination of comfort, practicality, and investment potential. Early viewing is highly recommended to fully appreciate all that this property has to offer.

  • Upper floor self catering flat
  • Two bedrooms
  • Town centre location
  • Walking distance to all amenities
  • Spacious accommodation
  • Open plan dining kitchen
  • Potential buy to let investment
  • Ideal first time purchase


General

It is understood that, on achieving a satisfactory price, the vendors will include fitted floor coverings and blinds throughout.

Services

Mains water, drainage and electricity

Council Tax

A

Energy Rating

EPC = D

Viewing

By appointment with GAP.

Entry

Negotiable.

More properties in Newton Stewart (23)