19 Myrton Crescent

Port William. DG8 9SP

UNDER OFFER - £95,000

Photograph of 19 Myrton Crescent, Port William

Photograph Gallery

Please click on a thumbnail, below, to view a photograph in more detail.

Photograph of 19 Myrton Crescent, Port William Photograph of Entrance Photograph of Lounge Photograph of Shower Room Photograph of Kitchen Photograph of Bedroom Photograph of Bedroom Photograph of Bathroom Photograph of Garden Photograph of Rear elevation Photograph of Driveway Photograph of Front

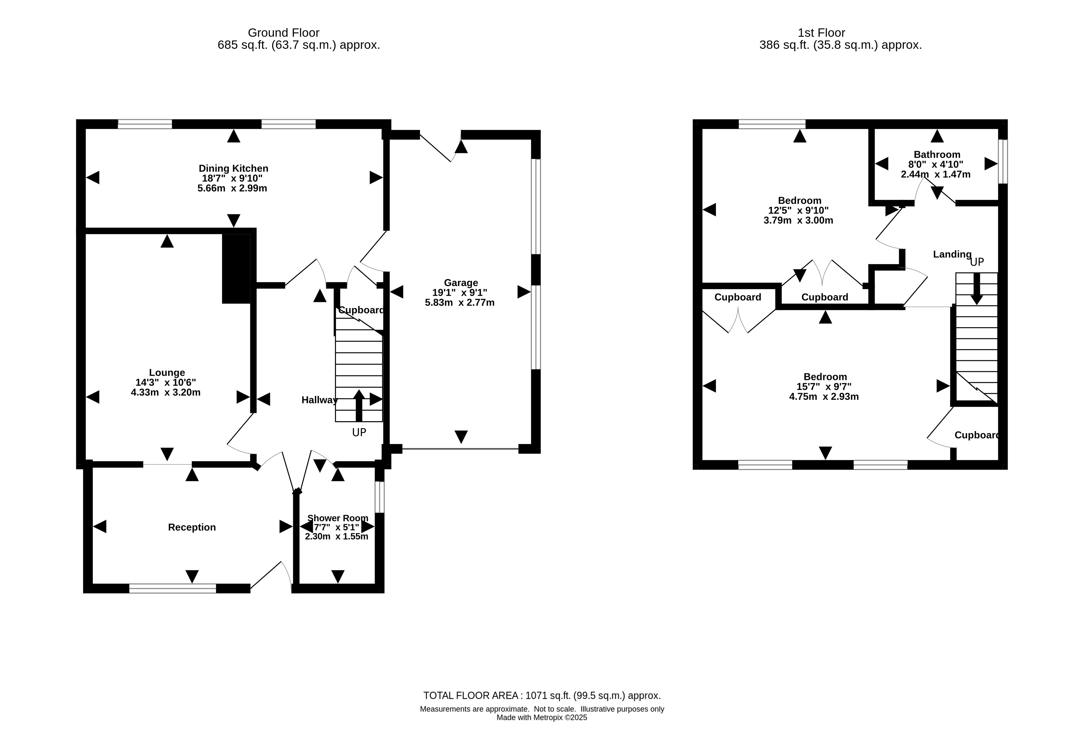
Floor Plan

Please click on the floor plan, below, to enlarge.

Floor Plan for 19 Myrton Crescent, Port William

Property Overview


2
Bedrooms
0
En-suite
1
Public Rooms
2
Bathrooms
Yes
Garden

Occupying a generous corner plot, this two-bedroom end of terrace house offers well-proportioned accommodation and a host ofpractical features. The property has beenthoughtfully extended to the front, creating aninviting entrance and additional living space. Inside,you will find two spacious double bedrooms, idealfor families or those seeking a guest room or homeoffice. The living areas are complemented by oilfired central heating, ensuring comfort throughoutthe year. The integral garage provides securestorage or parking, while the off-road parking to thefront adds further convenience for residents andvisitors alike.


The outside space is equally impressive, with fullyenclosed garden grounds to the rear featuring aconcrete pathway that winds through ameticulously maintained lawn, bordered by matureplanting and a boundary wall for privacy. Adetached garden store offers additional storage,and there is easy access to the oil tank. Theexpansive corner plot allows for a generous frontgarden, complete with a large manicured lawn, apaved driveway for multiple vehicles, and adetached timber shed for further versatility. Theproperty’s front access to the integral garage andample off-road parking make this home as practicalas it is appealing, perfect for modern family living.

  • Semi detached property
  • Two double bedrooms
  • Sat on a generous corner plot
  • Integral garage
  • Oil fired central heating
  • Extended to the front
  • Off road parking


General

It is understood that, on achieving a satisfactory price, the vendors will include fitted floor coverings and blinds throughout.

Services

Mains electricity, water & drainage. Oil fired central heating.

Council Tax

D

Energy Rating

EPC = D (65)

Viewing

By appointment with GAP.

Entry

Negotiable.