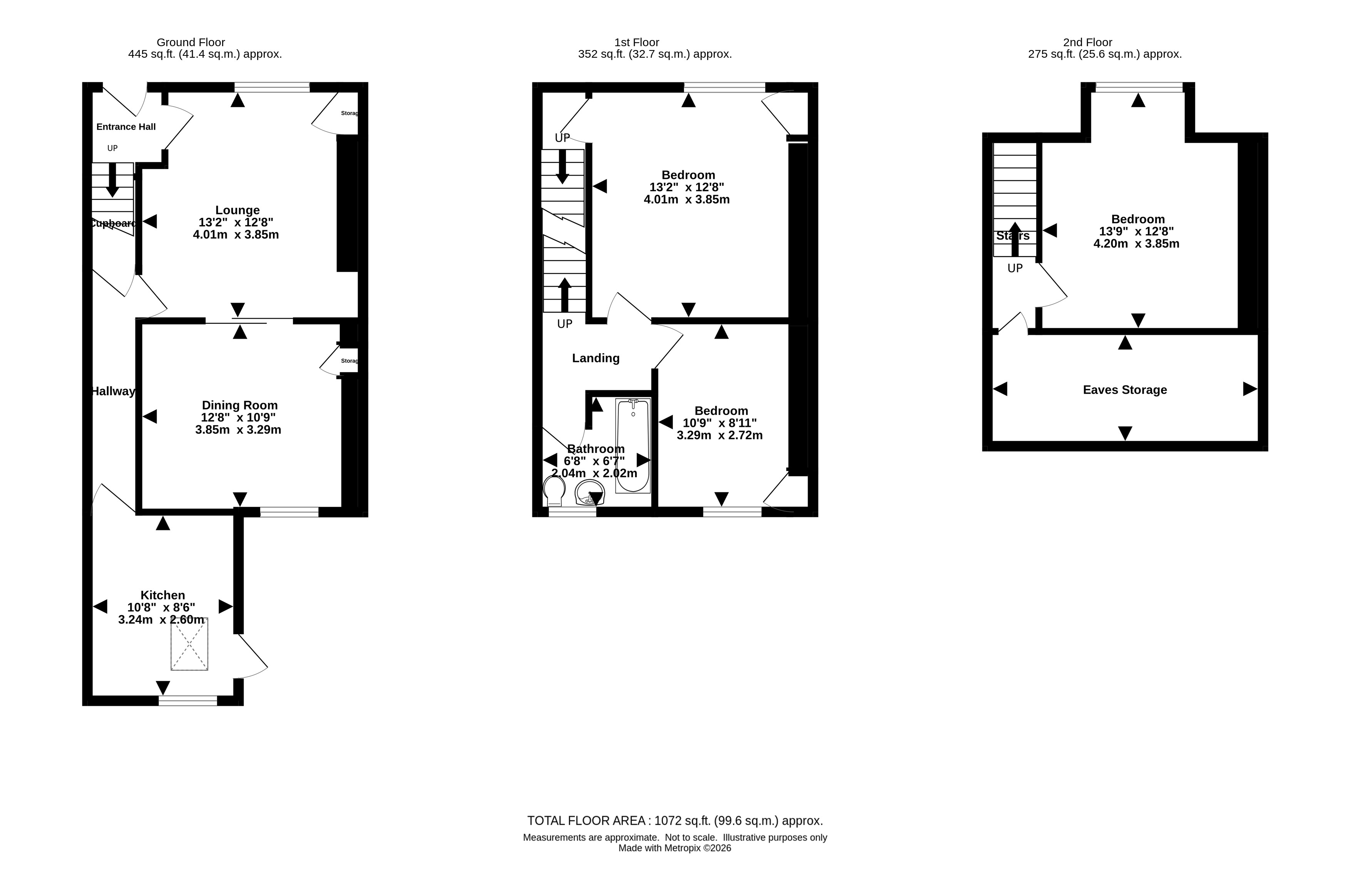
Situated within the charming coastal village of Isle of Whithorn, this traditional mid-terraced property offers spacious and versatile accommodation over two levels, perfectly suited to a range of buyers including first-time purchasers, holiday home seekers or those looking for a lifestyle change by the sea. The property enjoys a bright and welcoming lounge, enhanced by a feature fireplace and large window formation allowing for excellent natural light. A separate dining room provides an ideal space for both everyday use and entertaining, with an open flow through to the lounge creating a sociable layout. The kitchen is well-equipped with a range of fitted units, ample worktop space and room for informal dining, further benefitting from good natural light. Upstairs, the property offers three well proportioned bedrooms, including a particularly spacious upper room set within the roof space, providing flexible accommodation suitable for a family room, guest suite or shared bedroom. Each room benefits from a light and airy feel, with some enjoying attractive outlooks towards the surrounding area. The accommodation is completed by a bathroom fitted with a three-piece suite and shower over bath. New boiler (fitted 2022).
Externally, the property benefits from a low-maintenance enclosed rear garden, designed for ease of upkeep with gravelled and paved areas, alongside planted borders adding colour and interest. This space is ideal for outdoor seating, relaxing or entertaining. A standout feature of the property is its close proximity to the shoreline, with the harbour and sea just a short distance away. The setting offers a peaceful coastal lifestyle, with attractive views and scenic walks right on the doorstep. Offering spacious accommodation, outdoor space and an enviable coastal setting, this property presents a fantastic opportunity to acquire a home in one of Dumfries & Galloway’s most desirable seaside villages. Early viewing is highly recommended.
It is understood that, on achieving a satisfactory price, the vendors will include fitted floor coverings and blinds throughout.
Mains water, drainage and electricity
B
EPC = E
By appointment with GAP.
Negotiable.