Flat 2, Riverside Road

Newton Stewart. DG8 6NG

UNDER OFFER - £49,950

Photograph of Flat 2, Riverside Road, Newton Stewart

Photograph Gallery

Please click on a thumbnail, below, to view a photograph in more detail.

Photograph of Flat 2, Riverside Road, Newton Stewart Photograph of Rear Photograph of Lounge Photograph of Dining Area Photograph of Landing Photograph of Kitchen Photograph of Sitting room Photograph of Bedroom Photograph of Bathroom Photograph of Bathroom Photograph of Bedroom Photograph of Bedroom Photograph of Garden

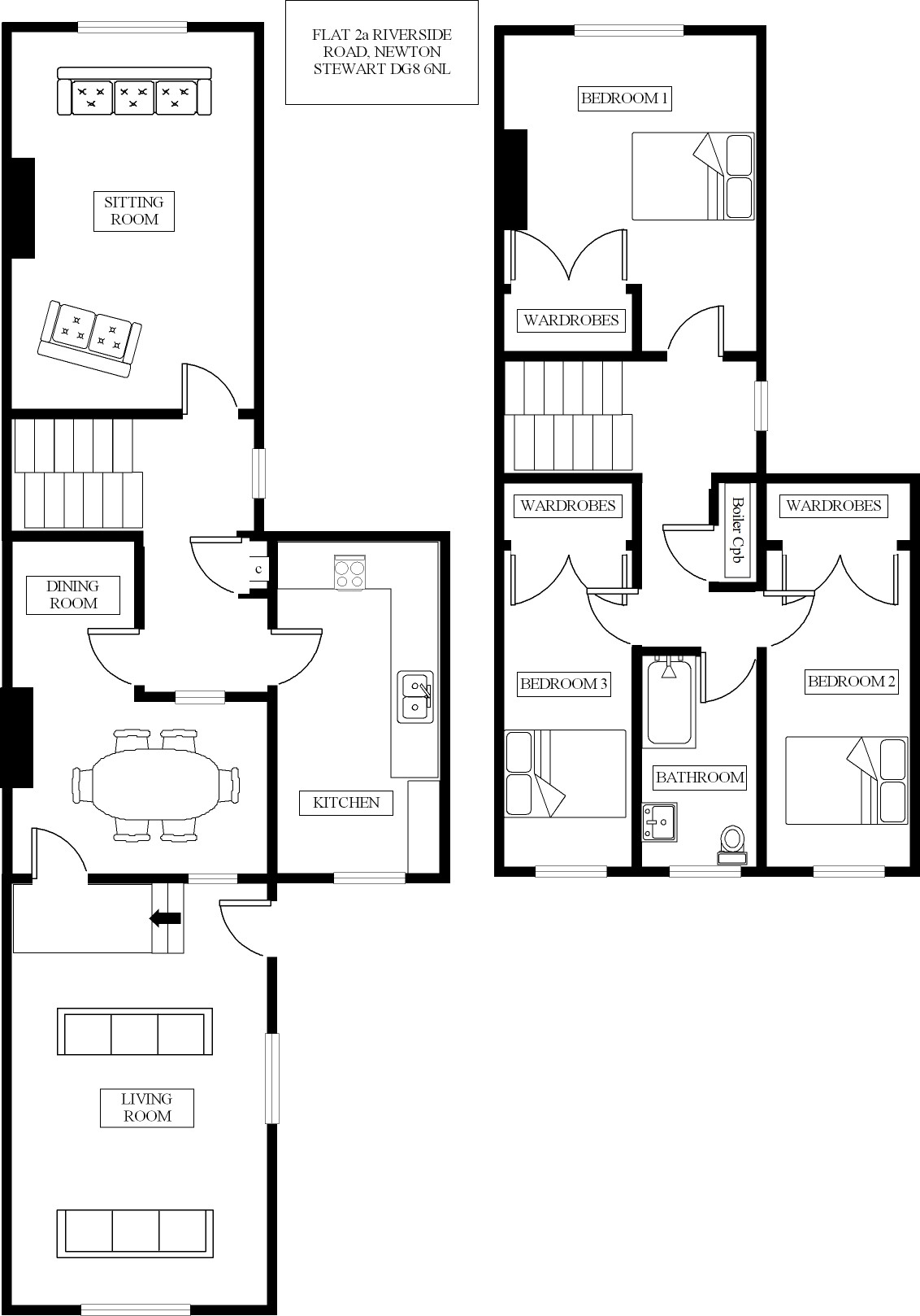
Floor Plan

Please click on the floor plan, below, to enlarge.

Floor Plan for Flat 2, Riverside Road, Newton Stewart

Property Overview


3
Bedrooms
0
En-suite
2
Public Rooms
1
Bathrooms
No
Garden

Presenting a desirable 3-bedroom flat, this upper floor maisonette offers spacious and generously sized accommodation perfect for those seeking a comfortable living space. The property benefits from gas-fired central heating, ensuring warmth during the cooler months.

Situated within walking distance to all amenities in a convenient town centre location, this residence presents an ideal buyto-let investment opportunity or a potential first-time purchase for discerning buyers.

Outside, at the rear of the property, an area of mixed gravel, concrete, and paving offers access to the ground floor shop premises. Throughout this space, external lighting illuminates the surroundings.

The Home Report valuation on this property is 57,000.00. Details of the Home Report can be accessed at:http://www.packdetails.com/notify.htm? sr=hp1185118c=DG8 6NL

  • Spacious upper floor maisonette
  • Generous sized accommodation
  • Three bedrooms
  • Gas fired central heating
  • Walking distance to all amenities
  • Town centre location
  • Ideal buy to let investment
  • Potential first time purchase


Services

Mains electricity, gas, drainage, and water.

Council Tax

B

Energy Rating

EPC = D

Viewing

By appointment with GAP.

Entry

Negotiable.

More properties in Newton Stewart (23)